Arama Yap

E-Kabin XM Serisi duvar tipi paslanmaz elektrik panoları dahili ve harici olarak genel kullanıma yönelik elektrik ekipmanları mahfazası olarak tasarlanmıştır. Hem harici hem de dahili uygulamalarda kullanılabilen ürün monoblok yapıda ve IP66 koruma sınıfındadır ve boyasız olarak üretilmektedir. Ancak özel imalat olarak istenilen RAL kodlarında boyalı veya vernikli imalat yapılabilmektedir. XM serisi paslanmaz pano 304 veya 316 kalite hammadde ile üretilebilmektedir. XM Serisinde plastik malzemeden kilit kullanılmaktadır. İsteğe bağlı olarak 304 veya 316 kalite paslanmaz çelikten imal edilmiş kilit de kullanılabilir. Tüm E-Kabin iç aksesuarları paslanmaz ürün içinde de kullanıma uygun şekilde boyutlandırılmıştır. Standart ürün tasarımına bağlı kalarak boyut değişikliği, malzeme kalınlığı değişikliği ve istenilen şekilde delik işlemleri uygulanabilir.

Kapı üzerine yerinde dökülen poliüretan conta zamanla esnekliğini kaybetmez, toz ve suya karşı koruma sağlar.

Duvara montaj yapılması istenen durumlarda braket kullanılmasına imkan sağlar. Eşik bölgelerinde sahip oldukları ters açılı kenar tasarımları sayesinde süzülen yağmur sularını pano dışına yönlendirirler.

Standart olarak kullanılan kimyasal dayanımı yüksek plastik gövdeli kilit yerine opsiyonel olarak kapı yüzeyinden çıkıntı yapmayan 316 kalite paslanmaz çelikten imal edilmiş kilit sistemi seçilebilir.

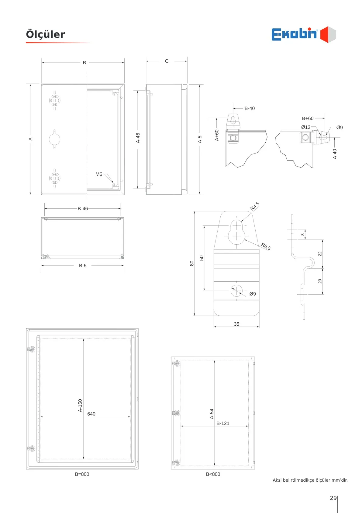
Standart dışı, özel boyutlarda imalat mümkündür. * Detay için Müşteri Temsilcinizden bilgi alınız.


Kapıda ve gövdede siparişe özel delik işlemleri uygulanabilir.

Braket takımı ile kutunun duvara montajı kolay ve hızlı bir şekilde yapılabilir. Braketin 90° çevrilerek kullanım kolaylığı sayesinde montaj esnekliği sağlanır. Standart kutu içeriğinde bulunmayan braket seti istendiğinde ayrıca sipariş edilmelidir.

Paslanmaz imalatında kaynak işlemi iz bırakmayacak şekilde uygulanır. Böylece temiz ve pürüzsüz yüzey görünümü sağlanır.
Montaj Şekli: | Duvar Tipi |
Modülerlik: | Monoblok |
Kullanım Yeri: | Dahili, Harici |
Koruma Sınıfı: | IP 66 |
Uygun Olduğu Standartlar: | IEC 61439-1, IEC 62208 IEC 60529, IEC 62262 |
Çevre Şartları Sınıfı: | EN 60721 - 3 - 3’e göre IE37 |
Malzeme: | 304 veya 316 kalite Paslanmaz Çelik - Standart |
Kilit Aksamı: | Plastik - Standart Paslanmaz Çelik - Opsiyonel |

Pano Anma Yüksekliği (A) | Pano Anma Genişliği (B) | Pano Anma Derinliği (C) | Sipariş Kodları (304) | Sipariş Kodları (316) | Kilit Sayısı | Menteşe Sayısı |
|---|---|---|---|---|---|---|
400 | 300 600
| 200 200
| XM 40 30 20 D 304 XM 40 60 20 D 304
|
XM 40 30 20 D 316
XM 40 60 20 D 316
| 1 1
| 2 2
|
500 | 400 | 200 | XM 50 40 20 D 304 | XM 50 40 20 D 316 | 1 | 2 |
600 | 400 600
| 200 300
| XM 60 40 20 D 304 XM 60 60 30 D 304
|
XM 60 40 20 D 316
XM 60 60 30 D 316
| 1 1
| 2 2
|
700 | 500 500
| 200 300
| XM 70 50 20 D 304 XM 70 50 30 D 304
|
XM 70 50 20 D 316
XM 70 50 30 D 316
| 1 1
| 2 2
|
800 | 600 600
800
| 200 300
200
| XM 80 60 20 D 304 XM 80 60 30 D 304
XM 80 80 20 D 304
|
XM 80 60 20 D 316
XM 80 60 30 D 316
XM 80 80 20 D 316
| 2 2
2
| 3 3
3
|
1000 | 600 600
800
| 200 300
200
| XM 100 60 20 D 304 XM 100 60 30 D 304
XM 100 80 20 D 304
|
XM 100 60 20 D 316
XM 100 60 30 D 316
XM 100 80 20 D 316
| 2 2
2
| 3 3
3
|
1200 | 600 | 300 | XM 120 60 30 D 304 | XM 120 60 30 D 316 | 2 | 3 |

Pano Anma Yüksekliği (A) | Pano Anma Genişliği (B) | Pano Anma Derinliği (C) | Sipariş Kodları (304) | Sipariş Kodları (316) | Kilit Sayısı | Menteşe Sayısı |
|---|---|---|---|---|---|---|
400 | 300 600
| 200 200
| XM 40 30 20 AC 304 XM 40 60 20 AC 304
|
XM 40 30 20 AC 316
XM 40 60 20 AC 316
| 1 1
| 2 2
|
500 | 400 | 200 | XM 50 40 20 AC 304 | XM 50 40 20 AC 316 | 1 | 2 |
600 | 400 600
| 200 300
| XM 60 40 20 AC 304 XM 60 60 30 AC 304
|
XM 60 40 20 AC 316
XM 60 60 30 AC 316
| 1 1
| 2 2
|
700 | 500 500
| 200 300
| XM 70 50 20 AC 304 XM 70 50 30 AC 304
|
XM 70 50 20 AC 316
XM 70 50 30 AC 316
| 1 1
| 2 2
|
800 | 600 600
800
| 200 300
200
| XM 80 60 20 AC 304 XM 80 60 30 AC 304
XM 80 80 20 AC 304
|
XM 80 60 20 AC 316
XM 80 60 30 AC 316
XM 80 80 20 AC 316
| 2 2
2
| 3 3
3
|
1000 | 600 600
800
| 200 300
200
| XM 100 60 20 AC 304 XM 100 60 30 AC 304
XM 100 80 20 AC 304
|
XM 100 60 20 AC 316
XM 100 60 30 AC 316
XM 100 80 20 AC 316
| 2 2
2
| 3 3
3
|
1200 | 600 | 300 | XM 120 60 30 AC 304 | XM 120 60 30 AC 316 | 2 | 3 |

Lorem ipsum dolor, sit amet consectetur adipisicing elit. Similique quod deleniti voluptatibus aliquam! Harum asperiores, repudiandae exercitationem esse numquam sit. Dolorum libero omnis quam eligendi impedit commodi inventore, praesentium eaque!